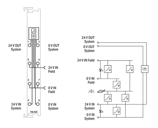
Filtro para bloque de alimentación; 24 V DC Tiempo de entrega: 3 a 4 días.
Esta combinación no existe.